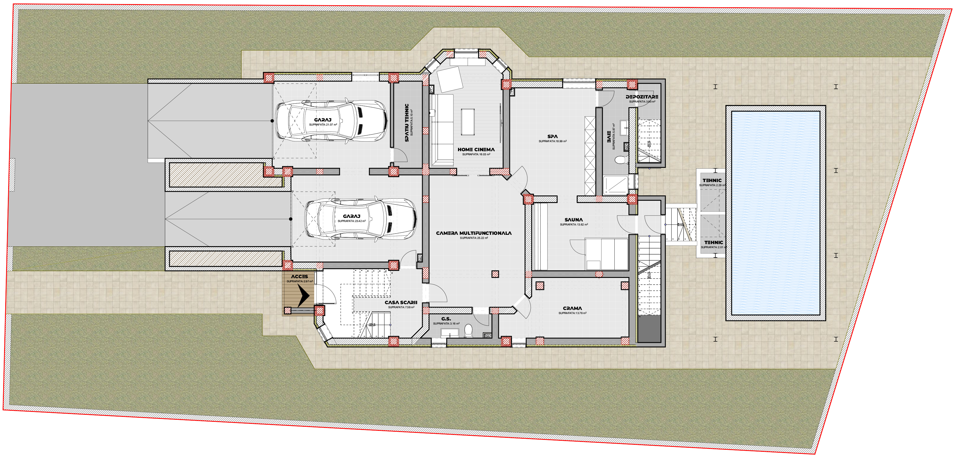
EF07 – CASA CLASICA D+P+1E
Acest proiect propune o intervenție amplă asupra unui imobil existent, prin etajare, extindere și reamenajare interioară. Dispus pe demisol, parter și etaj, imobilul va fi extins și modernizat, aducând un plus de eleganță și funcționalitate. Un element central al acestui proiect este piscina, care completează conceptul general al amenajării pe un teren generos de 769 mp.
Exteriorul clădirii va reflecta un stil modern, combinând materiale durabile și estetice, cu detalii elegante. Extinderile propuse și suprafețele vitrate mari permit o conexiune fluidă între interior și exterior, oferind spații luminoase și primitoare. La interior, amenajările moderne vor asigura confortul și funcționalitatea necesare unei locuințe contemporane.
Zona exterioară beneficiază de amenajări peisagistice care aduc un plus de relaxare și confort, în timp ce piscina adaugă un element de lux și recreere.
Imobilul etajat și extins va răspunde cerințelor moderne de locuire, îmbinând designul elegant cu soluții funcționale și sustenabile.
Suprafață teren::
POT::
CUT::
Suprafață construită::
Suprafață desfășurată::
Suprafață utilă::
Lățimea clădirii::
Lungimea clădirii::
Regim de înălțime::
Category:
EF09 – CASA D+P
Proiectul prezintă o locuință unifamilială cu arhitectură modernă, definită prin linii simple, suprafețe vitrate ample și un joc elegant de volume. Accesul principal se fa
EF05 – CASA S+P+2E
Proiectul propune extinderea unui imobil existent prin adăugarea unui subsol parțial și două niveluri suplimentare. Construcția rezultată va beneficia de spații ample și bi
EF03 – CASA P+1E
Acest proiect propune construcția unei locuințe unifamiliale moderne, dispusă pe două niveluri (P+1E), amplasată pe un teren de 213 mp. La nivelul parterului, este prevăzut u

