EF06 – CASA S+P+1E
Această locuință unifamilială modernă dispusă pe trei niveluri – subsol, parter și etaj – este un exemplu de echilibru între funcționalitate și eleganță contemporană. Amplasată pe un teren de 400 mp, locuința oferă confort sporit și spații generoase, perfect organizate, pentru o experiență de viață liniștită și armonioasă.
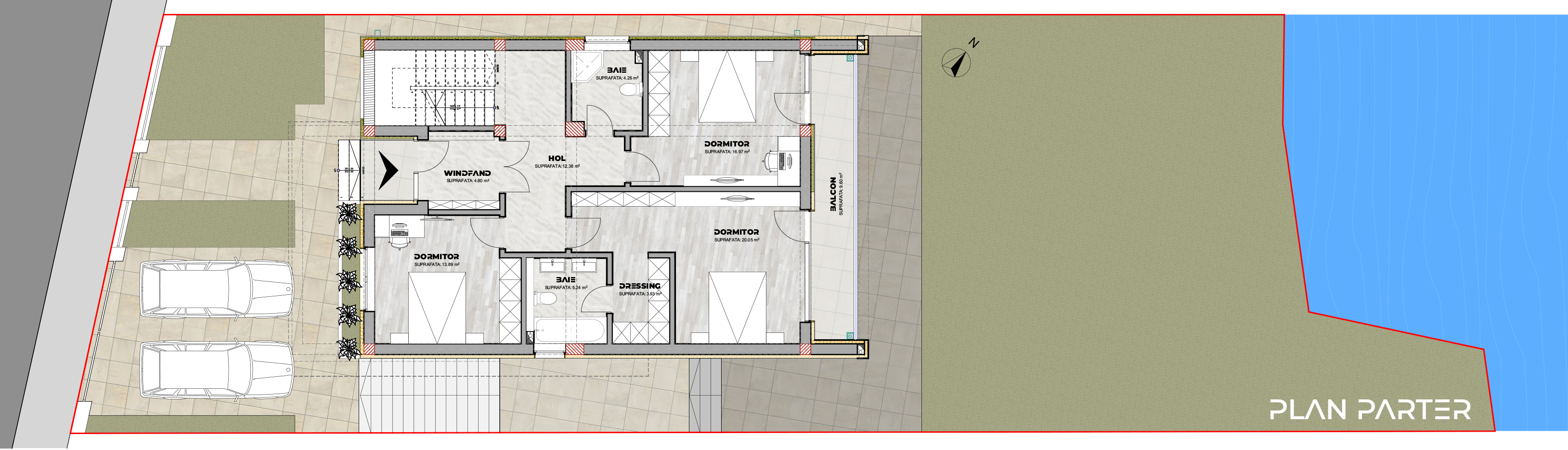
Exteriorul casei combină elemente minimaliste cu detalii moderne, iar materialele alese pun accent pe durabilitate și estetică. Suprafețele vitrate mari asigură un aport de lumină naturală în interior, creând spații deschise și primitoare. Zona de zi de la parter este fluidă și bine conectată cu terasa exterioară și grădina, oferind astfel o extensie naturală a spațiului interior. La etaj, dormitoarele oferă intimitate și confort, beneficiind de acces direct la balcoane și priveliști plăcute.
Zona de grădină și spațiile verzi completează designul, aducând un plus de relaxare și confort. Parcarea subterană oferă suficient spațiu pentru două mașini, integrându-se discret în peisajul general al locuinței.
Locuința integrează soluții moderne de construcție și eficiență energetică, asigurând un mediu confortabil și sustenabil pentru locatari. Designul echilibrat și detaliile de execuție contribuie la crearea unui spațiu de locuit contemporan, adaptat nevoilor familiei moderne.
Suprafață teren::
Suprafață construită::
Suprafață desfășurată::
Suprafață utilă::
Lățimea clădirii::
Lungimea clădirii::
Regim de înălțime::
POT::
CUT::
Category:
EF13 – CASA P+1E+M
Această locuință individuală modernă, cu regim de înălțime parter + etaj + mansardă (P+1E+M), este proiectată pentru a combina un spațiu de locuit confortabil cu un biro
EF04 – CASA P+1E
Această locuință individuală este un exemplu remarcabil de îmbinare a elementelor clasice cu stilul modern, creând un spațiu ideal pentru o familie care își dorește confo
EF15 – CASA P+1E
Această locuință unifamilială modernă dispusă pe două niveluri – parter și etaj – reflectă o abordare echilibrată între estetică contemporană și funcționalitate.

