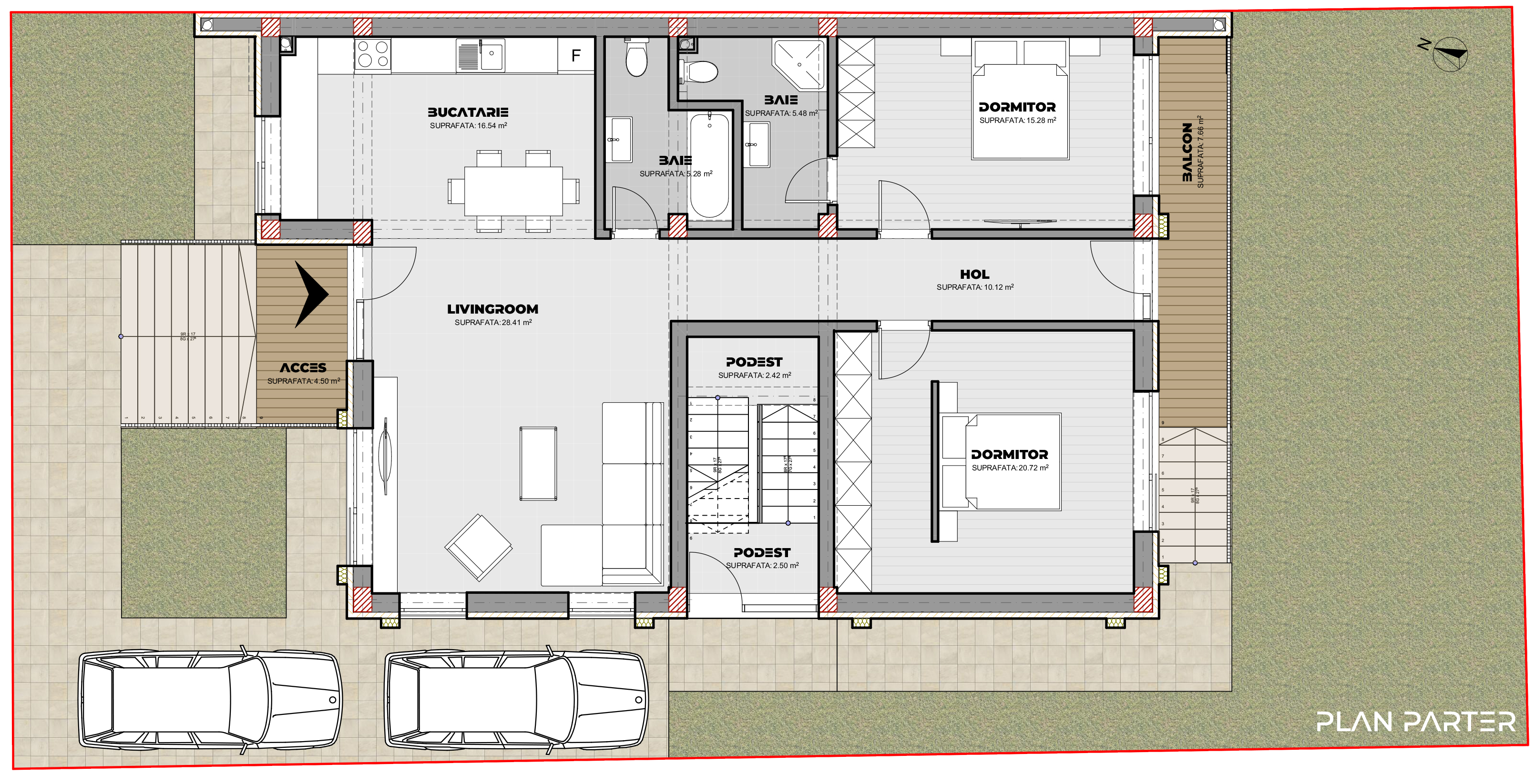
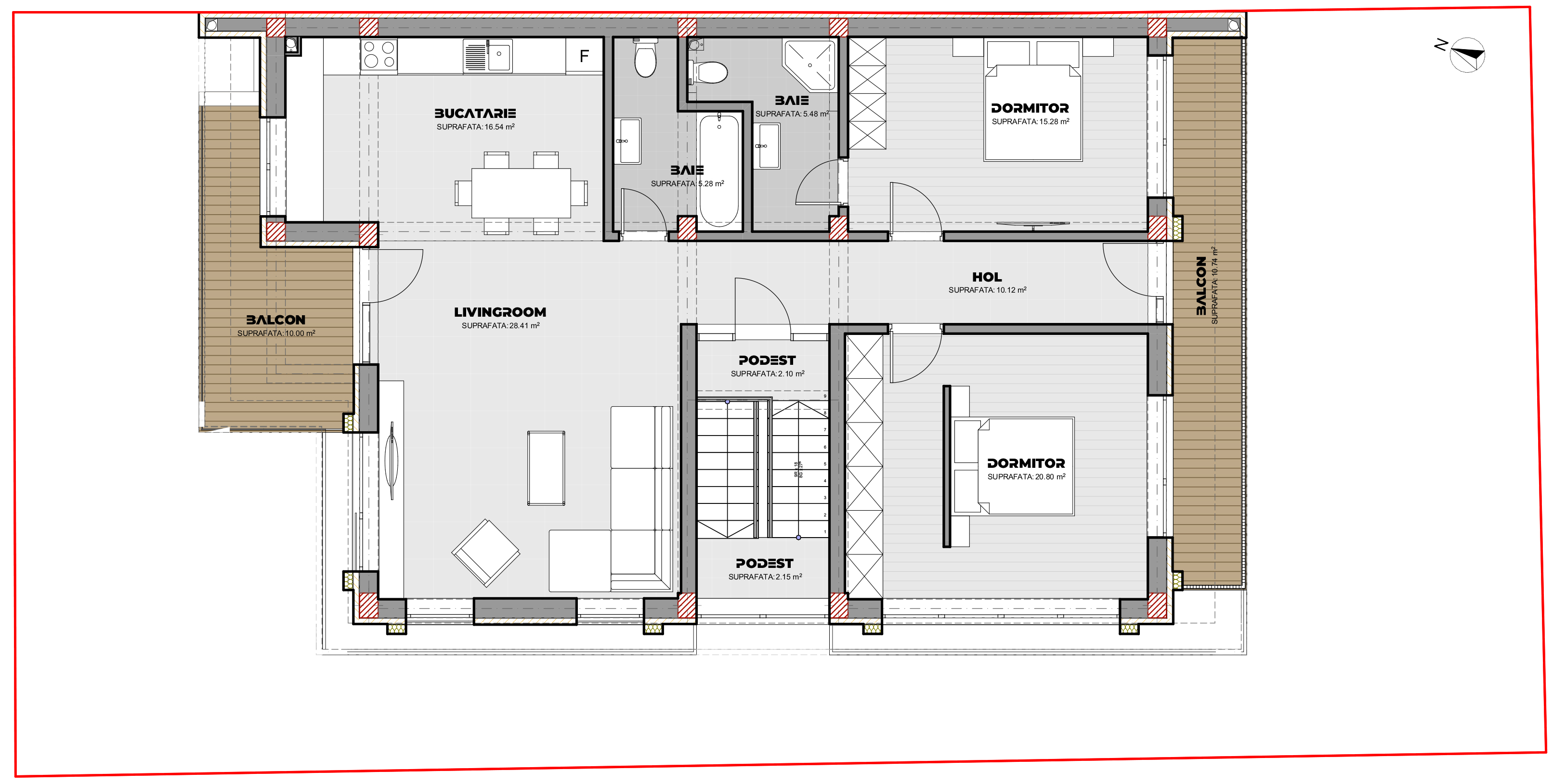
EF08 – CASA MODERNA D+P+1E
Proiectul prevede construcția unei locuințe individuale moderne, desfășurată pe trei niveluri: demisol, parter și etaj. Locuința este amplasată pe un teren de 300 mp și a fost proiectată pentru a asigura un confort optim, oferind spații locative bine organizate atât la interior, cât și la exterior. Imobilul include și spații tehnice la demisol, precum și balcoane care adaugă un plus de funcționalitate. Curtea este amenajată cu spații verzi, contribuind la un mediu relaxant pentru locatari.
Suprafață teren::
POT::
CUT::
Suprafață construită::
Suprafață desfășurată::
Suprafață utilă::
Lățimea clădirii::
Lungimea clădirii::
Regim de înălțime::
Category:
EF18 – CASA P+2E
Acest proiect prevede extinderea unui corp existent și realizarea de amenajări interioare, modificări ale fațadelor, împreună cu etajarea construcției cu două niveluri supl
EF19 – CASA PARTER
Acest proiect este conceput pentru o locuință unifamilială pe un singur nivel, amplasată pe un teren de 491 mp. Locuința impresionează prin arhitectura sa tradițională, cu
EF11 – CASA CLASICA S+P+1E+M
Această locuință unifamilială, modernă, dispusă pe patru niveluri (subsol, parter, etaj și mansardă), include un birou destinat profesiunilor liberale situat la parter, ofe

