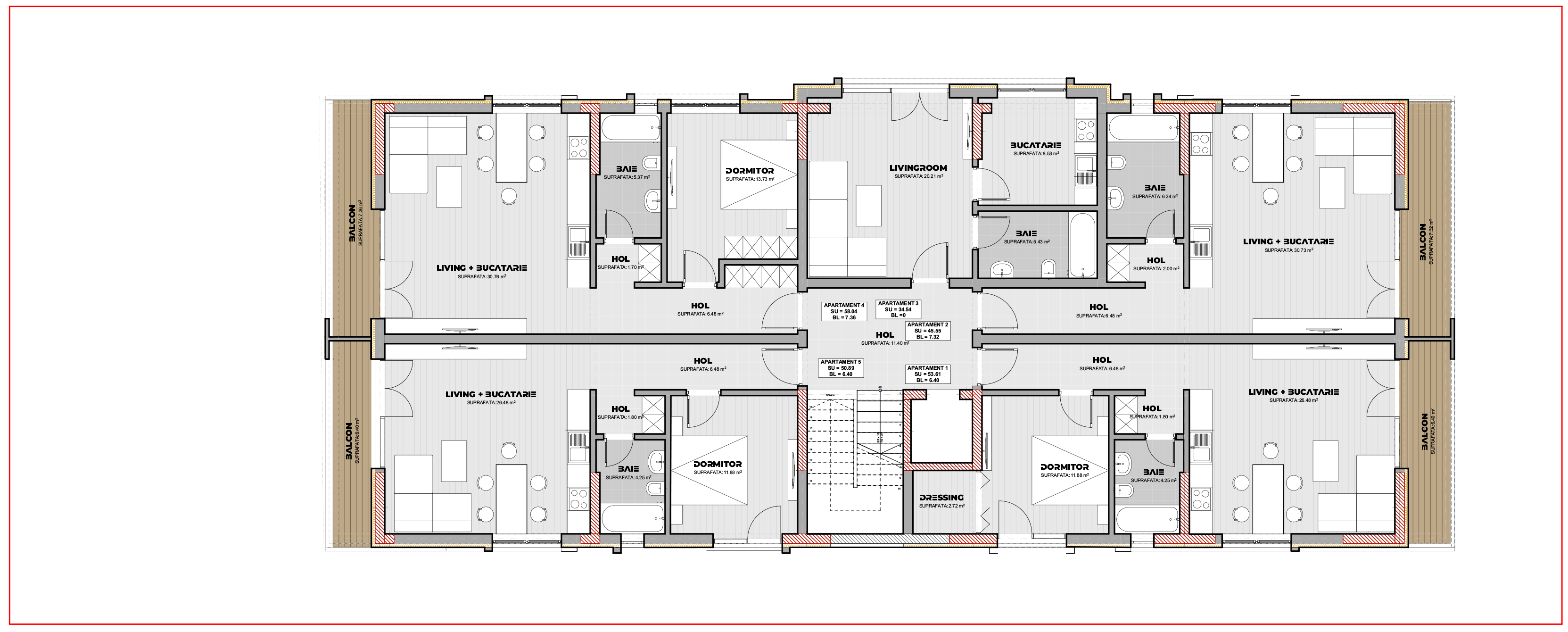
EF107 – BLOC P+4E
Acest imobil de locuințe colective, cu un regim de înălțime de P+4E, este un exemplu modern de arhitectură urbană, îmbinând estetica contemporană cu funcționalitatea necesară unei dezvoltări rezidențiale. Situat pe un teren de 650 mp în zona Tabăra Copii din Năvodari, acest proiect include 26 de apartamente repartizate pe patru etaje, oferind o varietate de spații locative adaptate nevoilor diverselor tipuri de locatari.
Exteriorul clădirii se remarcă prin liniile sale simple și elegante, dar și prin utilizarea materialelor moderne care conferă durabilitate și un aspect sofisticat. La parter, spațiile sunt destinate activităților liberale, adăugând o componentă practică și dinamică imobilului. Ferestrele mari și balcoanele generoase asigură o conexiune constantă cu exteriorul, permițând locatarilor să se bucure de lumină naturală și de aer proaspăt.
De asemenea, clădirea dispune de parcări în incintă, conform normativelor în vigoare, asigurând confortul necesar pentru locatari, iar spațiile verzi ocupă peste 16% din teren, creând un echilibru între zonele construite și cele de relaxare.
Designul clădirii integrează soluții moderne de construcție și eficiență energetică, contribuind la un stil de viață sustenabil și confortabil pentru toți locatarii.
Suprafață teren::
POT::
CUT::
Suprafață construită::
Suprafață desfășurată::
Suprafață utilă::
Număr apartamente::
Număr locuri de parcare::
Category:
EF104 – BLOC S+P+9E
Acest proiect propune construcția unui complex de locuințe colective, cu spațiu comercial la parter, amplasat pe un teren de 3333 mp, cu o suprafață cedată primăriei de 418,
EF106 – BLOC P+4E
Proiectul constă în construirea unui imobil de locuințe colective cu regim de înălțime P+4E. Imobilul include 20 de apartamente moderne, cu finisaje contemporane, proiectate
EF103 – BLOCURI S+P+2E
Acest proiect modern de locuințe colective dispus pe un regim de înălțime subsol, parter și 2 etaje este conceput pentru a oferi un echilibru între confortul urban și eficie

