EF01 – CASA S+P+M
Proiect de locuință unifamilială S+P+M
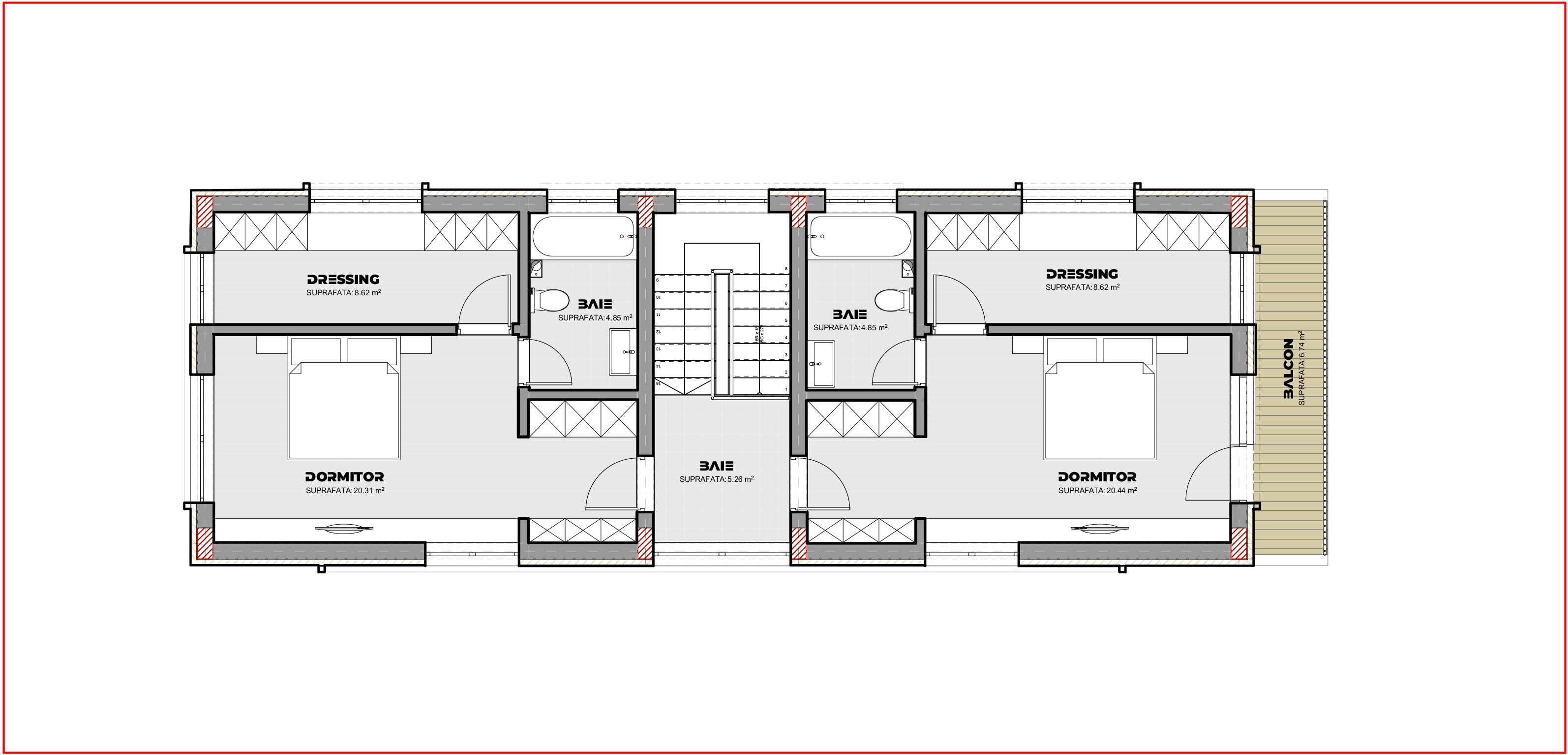
Acest proiect prezintă o locuință unifamilială cu un design modern și funcțional, perfect adaptat nevoilor unei familii active. Clădirea are un regim de înălțime S+P+M și este amplasată pe un teren de 300 mp, oferind spații bine compartimentate și generos dimensionate pentru locuit, relaxare și activități de zi cu zi.
Designul arhitectural minimalist pune accent pe linii drepte și finisaje elegante, completate de ferestre mari care permit pătrunderea abundentă a luminii naturale în toate încăperile. La parter, zona de zi este deschisă către grădină și este ideală pentru petrecerea timpului în familie sau cu prietenii. Mansarda oferă intimitate și confort, fiind destinată spațiilor de odihnă.
Un alt element cheie al proiectului este integrarea spațiilor verzi, care creează un mediu plăcut și sănătos, accentuând legătura dintre interior și exterior.
Această casă unifamilială oferă o combinație perfectă între modernitate, funcționalitate și confort, fiind ideală pentru familiile care își doresc un spațiu personalizat, cu un design atent gândit și o atmosferă primitoare.
Suprafata teren::
POT::
CUT::
Suprafață construită::
Suprafață desfășurată::
Suprafață utilă::
Lățimea clădirii::
Lungimea clădirii::
Regim de înălțime::
Category:
EF12 – CASA P+1E
Această locuință unifamilială modernă, cu un regim de înălțime parter și etaj, oferă un echilibru ideal între design contemporan și funcționalitate. Amplasată pe un t
EF22 – CASA S+P+1E
Această locuință unifamilială elegantă și bine proporționată, dispusă pe două niveluri – parter și etaj – este concepută pentru a oferi un echilibru între funcțio
EF09 – CASA D+P
Proiectul prezintă o locuință unifamilială cu arhitectură modernă, definită prin linii simple, suprafețe vitrate ample și un joc elegant de volume. Accesul principal se fa

